Przydomowa oczyszczalnia ścieków Centroplast Bioekocent 5300
Producentbrak
Przydomowa oczyszczalnia ścieków Centroplast Bioekocent 5300
Centroplast Bioekocent 5300 dla max 14 osób
- Produkt Spełnia Normy Wymagane Przez Unię Europejską.
- 10 lat gwarancji
- Zwrot do 14 dni
17 249 zł(netto: 14 024 zł)
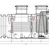
Technologia mechaniczno-biologiczna wykorzystana w zbiorniku Centroplast Bioekocent 5300 oparta jest na metodzie osadu czynnego. Oczyszczanie stanowi proces biologiczny, w którym mikroorganizmy tlenowe pod wpływem intensywnego natleniania wykorzystując zawarte w ściekach związki organiczne do własnych procesów życiowych. Stabilizacja i podtrzymanie procesu powodują, że mikroorganizmy eliminują niekorzystne dla środowiska związki i substancje zawarte w ściekach. Zaawansowana metoda oczyszczania połączona z nowoczesną konstrukcją zbiorników gwarantują odpowiedni efekt ekologiczny. Urządzenie to jest właściwie bezobsługowe, a jego zamontowanie nie wymaga dużej powierzchni. Natomiast oczyszczone ścieki mogą zostać odprowadzone bezpośrednio do odbiornika.Przeznaczone jest dla max 14 osób o przepustowości 1,8 m3/d.Wysokość: 180 cmDługość: 560 cmSzerokość: 153 cmUrządzenie wyposażono w listwę regulacyjną, której ręczne ustawienie umożliwia odpowiednie dozowanie powietrza do dyfuzora napowietrzającego i pompy mamutowej.Dlaczego Bioekocent:


- stabilny i wysoki stopień oczyszczania
- wysoka odporność mechaniczna zbiorników
- niskie zużycie energii elektrycznej
- nieskomplikowany sposób eksploatacji
- Mała powierzchnia zabudowy
- Brak konieczności stosowania biopreparatów
- studnia chłonna
- ciek wodny (rów)
- grunt (drenaż)
- oczko wodne



Przeznaczone jest dla max 14 osób o przepustowości 1,8 m3/d.
Wysokość: 180 cm
Długość: 560 cm
Szerokość: 153 cm
Urządzenie wyposażono w listwę regulacyjną, której ręczne ustawienie umożliwia odpowiednie dozowanie powietrza do dyfuzora napowietrzającego i pompy mamutowej.

















